Bologa | Comuna: Poieni | Judeţ: Cluj | Punct: Castrul roman auxiliar (Grădişte) | Anul: 2019
Descriere:
Raport ID:
6302
Anul cercetarii:
Perioade:
Antichitate;
Epoci:
Epoca romană târzie;
Categorie:
Apărare (construcţii defensive);
Tipuri de sit:
Castru;
Cod RAN:
| 59069.01 |
Județ:
Cluj
Unitate administrativă:
Poieni
Localitate:
Bologa
Punct:
Castrul Roman Auxiliar (Grădiște)
Localizare:
| 59069.01 |
Instituții și
Persoane implicate:
Persoane implicate:
| Nume | Prenume | Rol | Instituție |
|---|---|---|---|
| Cupcea | George | participant | Muzeul Naţional de Istorie a Transilvaniei, Cluj-Napoca |
| Marcu | Felix | participant | Muzeul Naţional de Istorie a Transilvaniei, Cluj-Napoca |
| Petiş | Ioniţă | participant | Muzeul Naţional de Istorie a Transilvaniei, Cluj-Napoca |
| Bajusz | Matyas | participant | Universitatea "Babeş - Bolyai", Cluj-Napoca |
Raport:
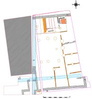
S-a continuat cercetarea suprafeţei începută în 2016, de pe latura de N a clădirii. Dimensiunile suprafeţei sunt 12 x 7,5 m. Stadiul la care a fost întreruptă cercetarea în 2017 este definit de nivelul contextelor C85, C74 (Pl. 1). Nici una dintre gropile sau şanţurile relevate nu au fost golite la acel moment. Iniţial, situaţia generală a suprafeţei nu s-a schimbat faţă de 2017, în sensul că nu s-a identificat, la curăţare, vreo structură nouă. Prin urmare, am procedat la îndepărtarea separată a C74, respectiv C85. Stratigrafia nu a fost unitară, însă nici nu putem să atribuim vreo funcţionalitate vreunui strat în tot acest proces.
Singurul context care pare să aibă vreo funcţionalitate în această etapă este C111, care s-a prezentat de la bun început ca o rigolă orientată N-S, prezentând şi o declivitate spre N (Pl. 2). Extinderea sa se potriveşte perfect cu G67 din Z10 şi trebuie menţionat că C111 trece şi la N de Z10. Din aceste motive credem că funcţionalitatea sa este aceea de a drena din curtea praetorium-ului înspre via principalis. Contextul a prezentat mai multe umpluturi, dintre care, cea mai recentă a fost marcată printr-o dungă de nisip pe toată lungimea.
După îndepărtarea de pe întreaga suprafaţă a lui C85 s-au conturat primele urme de structuri, şi anume: P8, P9 şi P10?, precum şi gropile de stâlp G128 şi G129 (Pl. 3-4). Drept urmare, considerăm că aceste structuri definesc o nouă încăpere de pe latura de N a clădirii denumită IX. Încăperea are dimensiunile de 4,70 (E-V) x 3,9 m (N-S), iar pe podeaua identificată de noi sub forma contextului C124 s-au conturat cinci urme de grinzi de podea in situ (C122/1, C122/2, C122/3, C122/4, C122/5). Distanţele dintre acestea variază între 90 – 130 cm (Pl. 4). În două dintre grinzi au fost descoperite fibule, aparent destul de timpurii. În privinţa limitei de S a încăperii, situaţia nu este la fel de clară, presupusul P10, orientat E-V nefiind vizibil în întreaga stratigrafie. Din această cauză propunem două variante; prima, a unui perete fără fundaţie, între cele două gropi de stâlp G128 şi G129, şi a doua, propusă datorită extinderii lui P8 şi la S de G128, precum şi a uneia dintre grinzi C122/3, în care P7/2017 sau P6/2017 să fie închiderea încăperii. Trebuie menţionat că G83 taie întreaga stratigrafie. În cazul în care prima variantă este validă, cele două gropi de mici dimensiuni G133 şi G134 pot marca intrarea.
G83 a fost golită la aproximativ jumătate din volum, permiţându-ne câteva observaţii: adâncimea sa maximă este de 70 cm; este tăiată de G66 care merge uşor mai adânc decât G83; la E se opreşte brusc şi drept la aproximativ 30 cm V de P9.
În jumătatea de N a încăperii IX se menţine declivitatea întregii stratigrafii observată încă din 2017. În această zonă, stratul de arsură C74 a fost mult mai consistent şi a prezentat dedesubt inclusiv un strat compact de var ars care poate fi urma tencuielii unui perete (P8?) prăbuşit. Încăperea nu prezintă sistem de încălzire, iar natura materialului arheologic găsit ne indică o funcţionalitate gospodărească (depozit, cămară, anexă a gospodăriei). Nivelul de călcare în încăperea IX este reprezentat de lutul compactat C124.
La V de încăperea IX a fost identificată o alee sau un mic pridvor, numit C118 şi extins pe toată lăţimea suprafeţei N-S, între P8 şi C111. Rigola corespondentă, C111, delimitează probabil acest trotuar de culoarul principal de acces în praetorium, probabil toată suprafaţa de la V de C111. De altfel, presupunerea noastră, că intrarea principală în clădire se afla la V de G67, este întărită de găsirea a două obiecte de fier care par a fi balamale de mari dimensiuni.
Zona de la E de încăperea IX
După cum am remarcat încă din anii trecuţi, zona este puternic deranjată de o locuire ulterioară şi de instalaţiile de tip platformă C26 şi C65. În plus faţă de concluziile cercetărilor din 2017, putem face următoarele observaţii: la îndepărtarea lui Z12 s-a conturat în jurul lui C26 un strat de pământ cu arsură şi material rulat despre care am crezut iniţial că este groapa de implantare a platformei, ipoteză care însă nu pare să se confirme. De altfel, spaţiul dintre C26 şi Z10 este împărţit între două straturi asemănătoare, cărora încă nu le-am putut stabili funcţionalitatea. O structură inedită care a apărut tot la îndepărtarea lui Z12 este C117, aparent fundaţia unui cuptor sau o instalaţie de încălzire, în ciuda lipsei urmelor de arsură atât pe el, cât şi pe Z10. Un aspect interesant este plasarea acestei structurii exact în colţul făcut de Z10 cu P9. Mortarul din C26 pare a fi identic cu cel din asizele superioare ale lui Z10 şi cu cel din C117. Platforma C26 prezintă încă cel puţin patru asize în plus faţă de cele identificate în anii anteriori. Din cauza faptului că C117 a apărut numai după îndepărtarea lui Z12, credem că este anterior acestuia din urmă. La S de platforma C26, după îndepărtarea lui C65, s-a relevat stratul general C74, apoi după îndepărtarea acestuia prezentându-ni-se câteva urme din C85.
Sub C85 s-a conturat o structură patrulateră cu margini de lemn ars, C126, cu dimensiunile de 2,70 x 1,10 m, presupusă a fi un corp de mobilier sau o ladă de depozitare. La îndepărtarea acestuia, a apărut un canal pe direcţia SV-NE, care vine dinspre încăperea IX şi care taie inclusiv nivelul de călcare din acesta.
Toate indiciile descoperite în această zonă ne duc înspre atribuirea unei funcţionalităţi gospodăreşti (bucătărie, loc de gătit). Deşi stratigrafia zonei este departe de a fi încheiată, din peretele şanţului G83, în cazul încăperii IX ne-am oprit pe un nivel de călcare valid din faza principală romană. Diferenţa se nivel evidentă dintre această podea şi podeaua încăperilor de pe latura de E (C4) se datorează faptului că acestea din urmă aveau instalaţie de încălzire cu hipocaust. Este evident că zona de N a clădirii era dedicată activităţilor gospodăreşti, urmând ca cercetarea în continuare, cel puţin a zonei dintre P9 şi Z2 să ne aducă lămuriri suplimentare în această privinţă.
Topografia încăperii se potriveşte bine cu celelalte compartimentări identificate pe laturile de S şi E ale pretoriului (Pl. 6), iar tehnica de construcţie, deşi uşor diferită, se încadrează în spectrul larg al întregii tehnici de edificare a clădirii (Pl. 5).

CC BY-SA 4.0