Capidava | Comuna: Topalu | Judeţ: Constanța | Punct: Cetate | Anul: 2022
Descriere:
Titlu raportului:
Raport de cercetare arheologică de la Topalu, jud.Constanța [Capidava] Punct: Cetate, Sectorul de est (sectoarele IV-V) intra muros
Raport ID:
6973
Anul cercetarii:
Perioade:
Antichitate; Evul Mediu;
Epoci:
Epoca romană; Epoca romană timpurie; Epoca romano-bizantină; Evul Mediu; Epoca bizantină;
Tipuri de sit:
Aşezare fortificată; Castru; Cetate; Fortificaţii;
Cod RAN:
| 63063.01 |
Județ:
Constanța
Unitate administrativă:
Topalu
Localitate:
Capidava
Punct:
Cetate
Sector:
Sectorul De Est (Sectoarele Iv-V) Intra Muros
Toponim:
Capidava
Localizare:
| 63063.01 |
Autorizare :
Autorizația pentru cercetare arheologică sistematică
Instituții și
Persoane implicate:
Persoane implicate:
| Nume | Prenume | Rol | Instituție |
|---|---|---|---|
| Potârniche | Tiberiu | participant | Muzeul de Istorie Naţională şi Arheologie Constanţa |
| Opriş | Ioan Carol | participant | Universitatea Bucureşti, Facultatea de Istorie |
Raport:
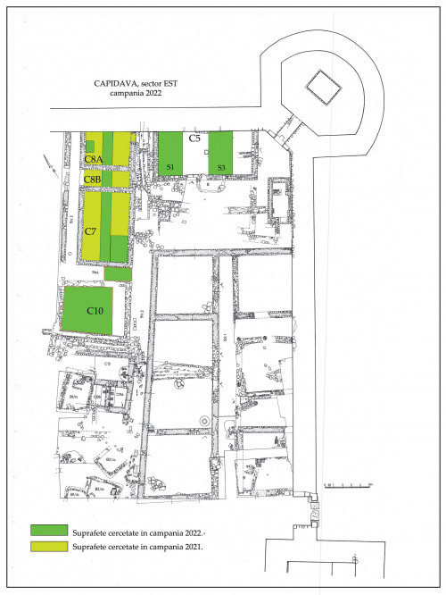
Sectorul de EST (sectoarele IV - V). Cercetările arheologice desfășurate în sectorul estic al cetății de la Capidava au debutat în data de 19 septembrie 2022, având ca scop principal continuarea investigațiilor realizate în campaniile precedente în zona edificiului E2, dispus perpendicular pe curtina F, finalizarea cercetărilor în încăperea C10, realizarea unui sondaj în spațiul dintre edificiul E2 și camera C10 precum și cercetarea a două secțiuni noi în încăperea C5, plasată la est de edificiul E2 și adiacentă curtinei F. EDIFICIUL E2: Încăperile C8A, C8B, C7 Edificiul E2 este situat în partea de nord a sectorului de est, având latura de nord-est alipită curtinei F. Cu o formă dreptunghiulară alungită, clădirea are componența sa 3 camere denumite în ordinea descoperirii lor: C8A, C8B și C7. Cercetările arheologice efectuate aici au fost stopate în anul 1996 pe un nivel de distrugere localizat cronologic în a doua jumătate sau chiar spre sfârșitul secolului al VI-lea p.Chr. Această situație nu este singulară în sectorul estic al Capidavei, ea fiind recent documentată și în ceea ce privește situația din edificiul E1. În cadrul campaniei 2006 au fost efectuate o serie de lucrări de conservare și restaurare asupra zidurilor perimetrale, în special asupra celor localizate în C8A. În campania din anul 2019 a fost reluată cercetarea din acest obiectiv prin investigarea secțiunii S2, fără ca aceasta sa fie epuizată. Ulterior, cercetările intreprinse în campaniile din anii 2020 și 2021 au continuat investigația arheologică atât în secțiunea S1 cât și în secțiunea S2. În vara anului 2020, au fost efectuate lucrări de restaurare asupra edificiului mai sus menționat, lucrări realizate în cadrul proiectului de restaurare recent încheiat la Capidava. Aceste lucrări au vizat refacerea și consolidarea zidurilor perimetrale, prin adăugarea unei asize de cărămidă pe baza amprentelor păstrate în mortarul original precum și a două asize de protecție, realizate din blocuri de piatră. Menționăm succint datele relevante asupra metodologiei de lucru abordată. Datorită dimensiunilor reduse ale edificiului (14,35 m x 5,08 m), s-a luat decizia de a realiza două secțiuni stratigrafice, dispuse perpendicular pe curtina F și cu un martor de 1,00 m între ele, tocmai pentru a surprinde cât mai bine datele stratigrafice. În două secțiuni, denumite convențional S1 și S2, săpătura s-a desfășurat simultan în toate cele 3 încăperi. În campania din anul 2019 a fost investigată secțiunea S2, debutând astfel tocmai din motive de evacuare a pământului rezultat din săpătură; ulterior, în campaniile din anii 2020 și 2021 au fost investigate ambele secțiuni, pentru în campania din 2022 să se realizeze demontarea martorilor și finalizarea complexelor de adâncime. Încăperea C7: în 2022 am efectuat demontarea martorului stratigrafic (7,80m x 1m) dintre secțiunile S1 și S2, operațiunea fiind necesară atât pentru recuperarea materialului arheologic, cât și pentru verificarea informațiilor dobândite în urma campaniilor precedente. Cercetarea anterioară a relevat prezența unor ziduri demantelate, corespunzătoare fazelor mai vechi de locuire. În această categorie se înscriu următoarele complexe: Zidul Z1, realizat din piatră legată cu pământ, orientat NE-SV, prezent pe întreaga amprentă a încăperii C7, având o lungime de 6,80 m și lățimea variabilă între 0,70-0,73 m. Zidul a fost conturat la adâncimea de 0,80 m, prezintă o înălțime de 0,40 m și păstrează un număr maxim de patru asize, realizate din blocuri de piatră de talie medie, unele dintre acestea fiind atent prelucrate. Spre sud-vest, la intersecția cu zidul perimetral al C7, starea de conservarea a zidului Z1 este precară, fiind păstrate doar două asize. Complexul a fost identificat și în exteriorul încăperii C7, fiind prezent atât în încăperea C8B, cât și în încăperea C10, spre sud-vest. Zidul Z2, realizat din piatră legată cu pământ, orientat NV-SE, plasat perpendicular pe zidul Z1 și ”țesut” cu acesta are o lungime de 3,40 m și o lățime de 0,71 m. Zidul a fost conturat la adâncimea de 0,95 m, prezintă o elevație de 0,45 m și păstrează un număr de 3 asize, realizate din blocuri de piatră de talie mică și medie. Zidul Z3, realizat din piatră legată cu pământ, orientat NV-SE, plasat cvasiparalel față de zidul Z2 are o lungime de 3,45 m și a fost conturat la adâncimea de -1,10 m. Prezintă două faze, suprapuse, din acest motiv lățimile fiind variabile: l1 = 0,40 m și l2 = 0,50 m. Cea mai veche dintre faze, căreia îi corespunde l2 păstrează două asize, în timp ce faza mai târzie (aferentă l1) doar o asiză. Zidul Z3 este suprapus de către aliniamentul zidului Z1, motiv pentru care îl putem considera mai timpuriu față de acesta. Un alt argument pentru această interpretare este acela că în timpul săpăturii arheologice, dar și la demontarea martorului stratigrafic, au fost identificate două straturi de nivelări dispuse succesiv peste zidul Z3, iar mai apoi peste zidurile Z2, respectiv Z1. Zidul Z4, denumit astfel pe baza situației identificate în campania 2021, când nu cunoșteam continuarea sa pe direcția NE – SV din cauza existenței martorului stratigrafic, s-a dovedit a fi un cuptor de dimensiuni apreciabile. Mai mult, în urma demontării martorului din încăperea vecină C8B s-a putut constata faptul că acesta continuă și dincolo de latura de NE a încăperii C7, fiind suprapus de zidul de compartimentare adăugat într-o perioadă târzie. În ceea ce privește complexul Z4, acesta descrie o formă cvasicirculară, ușor elipsoidală, având dimensiunie de 2,50 x 1,80 m. Lățimea zidului este variabilă, fiind înregistrate valori de la 68 la 55 cm. Zidăria se păstrează pe trei asize, o asiză fiind realizată din pietre de dimensiuni mari și medii, iar două din pietre de mici dimensiuni dispuse dezordonat. Construcția a fost identificată într-o stare de conservare relativ precară, fiind deranjată probabil de amenajările mai târzii. Gura cuptorului a fost amenajată prin inserarea între asizele de zidărie a unor fragmente de țiglă, deschiderea acesteia fiind de 60 cm. În partea dreaptă, spre sud a fost identificată și o gaură utilizată probabil pentru tiraj, de formă eliptică, având dimensiunile de 20 x 18 cm. Complexul a fost conturat la o adâncime de -0,60 m. Pe lângă aceste patru complexe, rămășițe ale unor structuri de locuire realizate din piatră legată cu pământ, au fost identificate și o serie de alte complexe, cinci la număr, în urma răzuielilor succesive. Este vorba despre patru șanțuri denumite convențional Ș1-Ș4, precum și de o groapă circulară – G5. Aceste complexe au fost identificate la cota de -1,70 m, în nivelul de loess și reprezintă, după toate probabilitățile, cele mai timpurii amenajări din perimetrul cercetat. În campania din anul 2022 au fost sondate doar șanțul Ș1, precum și groapa G5. Întrucât aceste complexe au fost identificate spre sfârșitul campaniei, am preferat să adoptăm metoda conservării și să reprogramăm cercetarea acestora pentru campania din anul viitor. În ceea ce privește situația celor patru șanțuri, acestea sunt dispuse perpendicular pe traseul zidului Z1, fiind paralele între ele și suprapuse de complexul sus-amintit. În aceeași situație se înscrie și groapa G5, suprapusă parțial de zidul Z1, în colțul de sud. Groapa G5: groapă de formă eliptică, săpată în loess, având secțiune evazată, a fost identificată la adâncimea de -1,70 m, dimensiunile la conturare fiind de 0,50 x 0,45 m. În campania din anul 2022 au fost cercetați primii 20 cm, suficient pentru a constata faptul că groapa se evazează puternic. Din umplutura acesteia au fost recuperate câteva fragmente ceramice ce provin din partea inferioară a unui vas de tip „sac” databil, în linii generale, în prima epocă a fierului. În absența altor elemente revelatoare și datorită calendarului înaintat al săpăturii, am preferat să programăm și investigarea detaliată a acestui complex tot în campania din anul viitor. Din punct de vedere stratigrafic au putut fi identificate două nivelări succesive, realizate cu pământ galben tasat puternic. Sub aspect cronologic s-a putut constata faptul că asistăm la cel puțin două secvențe de demantelare, prima fiind reprezentată de grupajul de șanțuri, alături de care putem include și complexul G5, iar cea de a doua, mai târzie, reprezentată de asocierea zidurilor Z1 – Z2 – Z3. Peste acestea din urmă, demantelate practic la aceeași cotă, a fost realizată o nivelare masivă, peste care s-a amenajat podeaua viitoarei încăperi C7. Astfel, alături de săpătura ocazionată de demontarea martorului stratigrafic dintre secțiunile S1 și S2, au fost practicate o serie de sondaje de control, suprafața cercetată în încăperea C7 însumând cca 20 m2, pe verticală săpătura desfășurându-se de la cota 0, până la -1,80 m. Încăperea C8B: În 2022 am efectuat demontarea martorului stratigrafic (1,90 x 1,00 m), după ce, anterior, în campaniile 2019, respectiv 2021, au fost investigate secțiunile S1 și S2. Pe parcursul cercetării au fost surprinse atât nivelul de distrugere de la sfârșitul secolului al VI-lea, cât și un nivel anterior, databil în secolul al IV-lea p.Chr. Pe verticală săpătura s-a oprit la -1,60 m; la -1,45 m a fost identificată o șapă realizată din mortar hidrofug, de culoare roz, care prezintă un relief ondulat. Șapa a fost identificată pe aproape întreaga suprafață a încăperii C8B și prezintă o inclinare abruptă către sud. În urma cercetării arheologice a putut fi observat faptul că complexul Z4 din încăperea C7 continuă și în interiorul încăperii C8B, descriind o formă circulară, afectată la partea superioară de amenajările mai târzii. Peste șapa de mortar a fost identificat un alt fragment de zidărie, denumit Z5, ce pare, după toate probabilitățile, conectat perpendicular la traseul zidului Z1, reprezentând latura de NE a edificiului susținut de acesta. Cât privește șapa de mortar hidrofug, s-a constatat faptul că ea nu este prezentă în exteriorul edificiului trasat de conturului zidului Z1, ci doar la interiorul acestuia. Identificarea unui mic șanț înclinat către NE, precum și relieful vălurit, ne poate sugera ipotetic varianta unei amenajări antropice necesare preluării și degajării apei pluviale scurse de pe pantele acoperișului – fiind identificată astfel limita de NE a edificiului databil în secolul al IV-lea p.Chr. Încăperea C8A: Și în această încăpere am procedat la demontarea martorului stratigrafic dintre secțiunile S1 și S2, cercetate în prealabil în campaniile anterioare, respectiv 2019 și 2021. În urma cercetărilor, în această zonă au fost identificate o serie de complexe notabile, între care menționăm un canal de scurgere, dispus pe toată amprenta încăperii C8A și orientat pe direcția NV – SE. Canalul a fost realizat din pietre de dimensiuni medii, tencuit cu mortar hidrofug, având panta de scurgere spre SE. Un al doilea complex de interes îl reprezintă zidul masiv identificat pe latura de est a încăperii C8A, suprapus de curtina F. Acest zid a fost realizat din blocuri masive de piatră legate cu mortar, din care au fost identificate cinci asize. Zidul este prezent pe toată latura estică a încăperii C8A, are lățimea de 0,80 m, înălțimea pastrată fiind de 1,10 m. Spre S2, traseul său a fost întrerupt de amplasarea unui dolium întreg, dar afectat de presiunea pământului. Vasul de provizii descoperit în campania din anul 2021 prezintă în partea sa superioară multiple crăpături și zone fisurate, astfel încât, din rațiuni de conservare, am preferat să nu investigăm această zonă sensibilă. Totuși, în acest punct, se impun o serie de observații importante: poziția vasului, al treilea pe o axă coliniară pe direcția NE – SV în cadrul edificiului E2 și plasat la același nivel, certifică nivelul final, databil în a doua jumătate al secolului al VI-lea, precum și un amplasament relativ plan. Sub aspect stratigrafic nivelul de loess a fost identificat la adâncimea de -1,40 m adâncime, de la care se remarcă absența materialului arheologic. Totuși identificarea zidului amintit mai sus ne-a îndemnat să continuăm săpătura până la -1,70 m, cotă la care a fost consemnată cea de a cincea asiză. În campania din anul 2022 ne-am propus investigarea amănunțită a acestui zid, precum și verificarea cotei la care se înregistrează stânca naturală în încăperea C8A. Din acest motiv, în colțul de nord al încăperii am efectuat un sondaj având dimensiunile de 1,50 x 1,00 m, pornind de la adâncimea de -1,70 m. Săpătura s-a efectuat încă 1,70 m, fără a mai înregistra nicio asiză, dar și fără a identifica obiectivul propus – stânca naturală. Din acest motiv, datorită adâncimii considerabile (cca -3,50 m), coroborat cu înălțimea zidurilor perimetrale existente, am considerat oportună încheierea sondajului propus. Totuși, întrucât spațiul a permis, am efectuat sondarea pentru încă 1,00 m cu ajutorul unei tije metalice, în 6 puncte distincte, fără a întâlni nici de această dată stînca naturală. În acest context, o concluzie preliminară ar putea fi aceea că platoul de stâncă pe care a fost amenajată fortificația de la Capidava dispune de o morfologie variată, masivul înregistrând o pantă mai abruptă către NE. Această informație ar putea fi probată prin efectuarea unui sondaj de control plasat extra-muros pe curtina F, obiectiv pe care ni-l propunem pentru campaniile viitoare. Încăperea C10: este situată la vest de edificiul E2, iar cercetarea arheologică efectuată aici a fost oprită în campaniile din anul 1997-1998. Zidurile perimetrale descriu un traseu trapezoidal, cu baza mică către nord –vest. În toamna anului 2019 a fost efectuată restaurarea și consolidarea zidurilor perimetrale existente ale încăperii în cadrul proiectului de restaurare recent încheiat. Cu acel prilej au fost identificate accesul plasat pe latura sudică, precum și o posibilă ieșire situată la est. Tot atunci a fost formulată ipoteza că încăperea C10 reprezintă o construcție adosată în componența edificiului E2, ca urmare a legăturii înregistrate pe latura nordică a zidului. Metodologic, suprafața încăperii C10 a fost împărțită în trei secțiuni denumite convențional SI-SIII, orientate pe direcția E-V, pentru verificarea informațiilor de ordin stratigrafic. În campaniile anterioare au fost cercetate secțiunile SI, respectiv SIII, obținându-se astfel două profile ce au reprezentat marginile secțiunii SII, ultima fiind cercetată parțial în campania din anul 2021. Anul acesta am continuat investigarea secțiunii SII având lățimea de 2,00 m și lungimea de 5,50 m, însumând o suprafață de aproximativ 11,00 m2. Cercetarea arheologică s-a efectuat de la adâncimea de -1,65 m și până la -2,25 m, fiind înregistrat un nivel anterior celui databil în secolul al IV-lea p.Chr. Este vorba în acest caz despre o nouă demantelare, a unui stabiliment timpuriu, databil pe baza materialelor identificate în secolele II-III p.Chr. Scopul principal al cercetării a fost acela de a identifica eventualele legături dintre o serie de complexe (șanțuri de demantelare) identificate parțial în campania anterioară, complexe prezente atât în secțiunea SI, cât și în secțiunea SIII. La adâncimea de -2,25 m au fost identificate două șanțuri de dimensiuni diferite (Ș1 și Ș2), dispuse perpendicular unul față de celălalt, ambele fiind perforate ori străjuite de gropi de par de formă prismatică ori circulară. Șanțul Ș1 are o lungime de 2,37 m și o lățime variabilă cuprinsă între 0,35 - 0,30 m. Orientarea acestuia este NV – SE, iar adâncimea păstrată de numai -0,10 m. Complexul reprezintă rezultatul unei demantelări masive, fiind puternic afectat de amenajările ulterioare. Prin cercetarea acestuia au fost identificate cinci gropi de par dispuse tangențial, patru dintre ele fiind de formă dreptunghiulară. Din umplutura sa au fost recuperate câteva fragmente ceramice databile în epoca romană timpurie. Șanțul Ș2 are o lungime de 4,81 m și o lățime variabilă cuprinsă între 0,60 – 0,30 m. Orientarea sa este NE – SV, iar adâncimea păstrată de cca 0,33-0,35 m. Din umplutura acestuia au fost recuperate câteva fragmente ceramice asemănătoare celor descoperite în complexul Ș1. A fost remarcată și prezența a patru gropi de par în axul median al șanțului. În acest context considerăm că cele două complexe sunt contemporane și reprezintă urmele unei barăci militare databile în epoca Principatului. Respectiva interpretare este întărită și de descoperirea în stratul de demantelare a unei cărămizi purtând ștampila LEG XI CL, precum și a unor fragmente ceramice bine determinabile (opaiț atelier OCTAVI). Un alt complex extrem de interesant identificat la sfârșitul campaniei din anul 2021 este reprezentat de groapa G4, plasată în colțul vestic al încăperii C10. După reconturarea complexului, în această campanie am efectuat cercetarea sa, prin metoda secționării mediane. Groapa G4: groapă circulară, săpată în loess, având secțiunea convexă și diametrul de 1,46 m, care a fost conturată la adâncimea de -2,25 m. În urma cercetării acesteia am putut consemna adâncimea de -1,10/-1,15 m de la conturare, complexul încheindu-se pe patul de stâncă naturală, la adâncimea de -3,40 m. Din umplutura complexului au fost recuperate cantități însemnate de țigle sparte și fragmente de olană, precum și numeroase fragmente ceramice provenite în special de la veselă de bucătărie. Alături de acestea se remarcă prezența unei monede, precum și a unui obiect metalic – vârf de suliță. Poziționarea gropii G4 ce atinge tangențial traseul șanțului Ș2 ne-a permis intepretarea succesiunii cronologice dintre cele două complexe, groapa circulară dovedindu-se mai târzie, acest amănunt fiind vizibil în urma secționării practicate pe direcția NV – SE, perpendicular pe traseul șanțului Ș2. Datorită faptului că atât în încăperea C10, cât și în încăperile C7, respectiv C8B aferente edificiului E2 a fost identificat traseul zidului Z1 realizat din blocuri de piatră legate cu pământ demantelat ordonat pentru amenajarea nivelului de călcare din secolul al VI-lea p.Chr., am considerat oportună efectuarea unui sondaj pe coridorul dintre cele două suprafețe (E2 (C7) / C10), pentru verificarea continuității acestuia sau pentru identificarea unei limite, respectiv a unei succesiuni de clădiri. Sondaj E2 (C7)/ C10: Pentru verificarea continuității traseului zidului Z1 am efectuat un sondaj cu lungimea de 3,00 m și lățimea de 1,55 m în coridorul dintre cele două încăperi. Cercetarea arheologică a relevat prezența zidului Z1, realizat în aceeași tehnică (piatră și pământ) pe întreaga lățime a sondajului. În plus, cercetarea a relevat existența unui al doilea zid, paralel cu Z1, plasat mai la sud, care nu se înscrie încă în niciunul dintre aliniamentele cunoscute. Sondajul a fost efectuat până la adâncimea de -1,20 m, fiind urmărite primele trei asize ale zidului Z1. Sub aspect stratigrafic au fost identificate următoarele straturi: * strat de loess, nivel rezultat în urma proiectului de restaurare din anii 2017-2018. * strat de arsură având o consistență granuloasă și mult sediment de cărbune și lemn carbonizat, abundent în fragmente de sticlă de geam – reprezentând posibila distrugere a C10. * strat de nivelare realizat cu pământ galben puternic tasat peste care au fost așezate minuțios țigle ceramice fragmentare. * strat de umplutură/nivelare în care au fost amenajate cele două ziduri identificate. De remarcat este faptul că peste segmentul de zid demantelat a fost practicată o amenajare cu țigle, în scopul de a spori și mai mult gradul de stabilitate al solului. Materialele arheologice recuperate sunt reprezentate de fragmente ceramice, precum și material osteologic și piese din fier (în special piroane). Pe baza acestor noi informații putem documenta prezența unui edificiu de dimensiuni însemnate, depășind în momentul actual 16,00 m, fără a fi cunoscute limitele spre vest și sud. Alături de cercetările intreprinse în spațiul edificiului E2, precum și în încăperea C10, un alt obiectiv important al campaniei din anul 2022 în sectorul de Est al fortificației de la Capidava l-a reprezentat reluarea cercetărilor în încăperea C5. Acest perimetru alipit curtinei F se situează pe terasa înaltă din vecinătatea turnului T6. Cercetările arheologice efectuate aici au fost stopate la începutul anilor 1990, fiind identificat un nivel de călcare databil în secolul al VI-lea, marcat printr-un pavaj realizat din dale de cărămidă. În urma cercetărilor anterioare au fost identificate o serie de vase de provizii (dolia), recuperate cu destinație muzeistică. Încăperea C5: Amplasamentul are lungimea de 10,60 m și lățimea de 4,90 m, motiv pentru care ne-am propus cercetarea acestuia prin trasarea a patru secțiuni dispuse perpendicular pe curtina F. Datorită faptului că încăperea prezintă două căi de acces - prima situată pe latura de est, iar cea de a doua pe latura de sud -, lățimile secțiunilor propuse au fost dictate și de accesul, respectiv de metoda de evacuare a pământului din săpătură. Nu în ultimul rând, menționăm faptul că pe amprenta edificiului au fost identificate două baze de piatră cu rol de susținere a pilelor necesare acoperișului, iar pentru verificarea legăturii stratigrafice am optat să trasăm secțiunea 3 tangentă la una dintre acestea, modificând astfel echilibrul dintre secțiunile proiectate. Scopul pentru care am decis reluarea cercetării în acest segment este acela de a verifica traseul și situația locală a incintei, în raport cu informațiile recent obținute în încăperea C8A. Secțiunea SI: dispusă perpendicular pe curtina F, având lungimea de 4,90 m și lățimea de 3,00 m. Cercetarea arheologică efectuată aici a relevat faptul că din punct de vedere stratigrafic situația este unitară pe întreg segmentul curtinei F. A fost identificată plinta la adâncimea de -0,40 m. Sub nivelul de călcare databil în secolul al VI-lea, marcat în secțiunea S4 prin dalele de pavaj de cărămidă, se înregistrează un nivel de incendiere marcat prin resturi lemnoase carbonizate și pământ ars de culoare roșie. Pe întreaga suprafață a secțiunii S1 nivelul pavajului este puternic perturbat, elementele de legătură fiind vizibile doar în colțul de vest, acolo unde a fost identificată o mică porțiune de șapă de mortar ce poartă încă amprenta dalei de cărămidă. Sub nivelul pavajului de cărămidă se înregistrează o zonă puternic tasată, de consistență dură, amenajată cu pietre de mici dimensiuni și sol galben. În ceea ce privește baza din piatră destinată susținerii stâlpului de acoperiș am observat faptul că aceasta a fost amenajată pe un soclu realizat din pietre de mici dimensiuni. În urma răzuielilor de control au fost identificate două gropi distincte denumite G6, respectiv G7. Groapa G6 este de formă circulară și după toate probabilitățile aparține vasului de provizii nr. 3, extras după campaniile din anii 1990. Pentru a stabili forma și dimensiunile exacte am efectuat secționarea pe jumătate, cercetând doar primii 40 cm. La polul opus, groapa G7, localizată spre latura vestică a încăperii C5, reprezintă un complex extrem de interesant. În urma răzuielilor de control a fost identificată o structură de formă cvasicirculară, având dimensiunea de 1,80 x 2,00 m și marcată prin sol de culoare roșie și crustă de arsură. Conturarea s-a realizat la adâncimea de -0,95 m. În urma secționării am constatat că adâncimea finală a gropii este de doar 35 cm, iar fundul acesteia este amenajat cu țigle având dimensiunile de 50 x 40 cm fiecare. Din cauza presiunii pământului s-a produs o fractură pe latura de est, țiglele păstrându-și însă conexiunea inițială. Având în vedere poziționarea complexului, adiacent la canalul de evacuare al apelor pluviale plasat între încăperile C8A respectiv C5, putem lua în calcul existența unei dotări suplimentare și care deservea această instalație. Complexul astfel identificat a rămas sigilat și va fi investigat în campania viitoare. Secțiunea SIII: dispusă perpendicular pe curtina F, cu lungimea de 4,90 m și lățimea de 2,50 m. Trasarea acestei secțiuni s-a făcut ținând cont de amplasarea celei de a doua baze de stâlp, astfel încât profilul de pe latura vestică să fie tangențial cu baza stâlpului. În urma cercetării arheologice au fost identificate câteva complexe reprezentate de ziduri și gropi. Într-o primă instanță se remarcă groapa g1, groapă de chiup ce a putut fi surprinsă atât în suprafață, cât și pe profilul de sud al secțiunii. Din umplutura acestui complex a fost recuperată o cantitate însemnată material ceramic fragmentar, precum și două fragmente ale unor capace de dolia realizate din cărămizi ajustate. În urma săpăturii arheologice s-a putut constata faptul că starea de conservare a curtinei F în acest perimetru este excelentă, fiind încă vizibile urmele de tencuială. Din punct de vedere stratigrafic, au putut fi identificate o serie de nivelări succesive realizate cu pământ galben, întrerupte interstițial de depuneri firave de bulgări de mortar. Acest element ne poate conduce la ideea că zona reprezintă o amenajare intenționată a zonei de construcție a zidului de incintă. În cel de-al doilea carou al secțiunii a fost identificat un zid masiv realizat din piatră legată cu pământ, având lungimea de 2,70 m și lățimea medie de 0,60 m. Zidul se conturează la adâncimea de -0,40 m, prezintă o elevație de cel puțin 90 cm și păstrează încă cinci asize clare. Orientarea acestuia este NNV-SSE, fiind vizibil pe întreaga lățime a secțiunii. La baza acestuia, spre vest, a fost identificată o zonă de dărâmătură puternic bulversată de pe suprafața căreia au putut fi recuperate cantități însemnate de zgură metalică și de sticlă. Săpătura a fost oprită la adâncimea de -1,30 m și va continua în campania viitoare. În concluzie, principalele rezultate ale campaniei sunt reprezentate de confirmarea și întregirea traseului zidului Z1 prezent în încăperile C10, C7 și C8B, precum și identificarea limitei acestuia spre nord; cercetarea și confirmarea existenței nivelului timpuriu, prin baraca investigată în încăperea C10; identificarea unor faze de construcție anterioară, precum șanțurile Ș1-Ș4 și groapa G5 din încăperea C7; informațiile referitoare la relieful platoului stâncos în segmentul C8A adosat curtinei F. Au fost recuperate de asemenea elemente de acoperiș, vase ceramice, întregi sau întregibile, piese din sticlă și os, monede din bronz și alte obiecte mărunte. Cercetările au fost documentate atât în scris, cât și digital, prin fotografii. Au fost de asemenea efectuate înregistrări grafice, fiind întocmite grundriss-uri și profile la scări convenabile. În cursul săpăturii propriu zise cercetările au fost documentate suplimentar prin realizarea unor fotografii aeriene captate cu ajutorul dronei.
Abstract [EN]:
The archaeological research carried out in the eastern sector of the fort from Capidava started on September 19th 2022, aiming to continue the investigations carried out in the previous campaigns in the area of the E2 edifice. The latter is perpendicular to curtain F of the castellum. Other research objectives were completing the research in room C10, carrying out a survey in the space between edifice E2 and room C10, as well as the investigation of two new sections in room C5. Building C5 is placed east of edifice E2 and adjacent to curtain F. Building E2, rooms C8A, C8B, C7. The building is located in the northern part of the eastern sector, with the northeastern side represented by curtain F. It had a rectangular, elongated shape and 3 rooms, conventionally named in the order of their excavation: C8A, C8B and C7. During the 2022 campaign we focused on the dismantling of the stratigraphic wall between sections S1 and S2, in order to recover the archaeological material and for checking the information already acquired during the previous campaigns. Room C10 is located to the west of building E2. In 2022 we continued the investigation of the SII section, documenting three new complexes dating back to the Principate (2nd-3rd centuries): two dismantling trenches, distributed perpendicularly from each other and representing the traces of the early barracks, as well as a circular pit (G4). Due to the fact that the course of wall Z1 was identified in both room C10 and in rooms C7 and C8B of E2 edifice, we considered it opportune to carry out a trial trench in the corridor between the two surfaces (E2 (C7) / C10). Its purpose was to verify again the course of the wall and to establish a limit and a sequence of buildings, respectively. In Room C5, the archaeological research was resumed by investigating sections S1 and S3. Two circular pits (G6 and G7) were identified, as well as a wall made of stone bounded with earth (Z1). In conclusion, the most significant results of the campaign are the confirmation and completion of the course of wall Z1, observed in rooms C10, C7 and C8B, as well as the identification of its limit to the north; the confirmation of the existence of an early Roman layer, dating back to the 2nd – 3rd centuries, more precisely a barrack, to the interior of the Late Roman/ Early Byzantine room C10.

CC BY-SA 4.0